0

Aucamville (31140)
Aucamville dans une impasse : terrain Ă  construire Ă  acheter avec fort potentiel

  • Ă  propos de ce
    bien

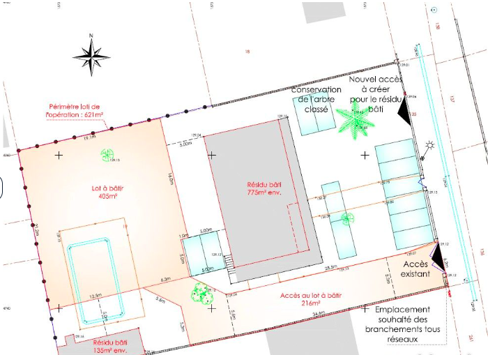
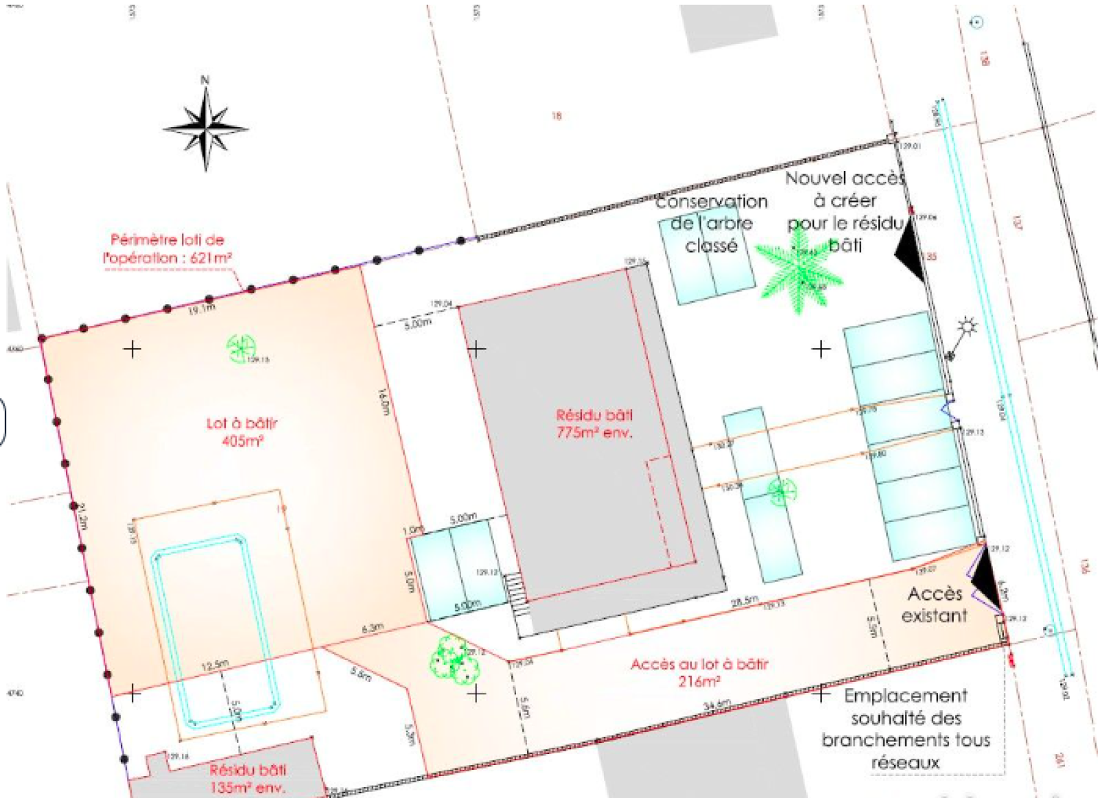
    À Aucamville centre, passer de l'idée au projet grâce à ce terrain viabilisé bien dimensionné. Vous disposerez d'une surface de plus de 400m² pour réaliser votre rêve en construisant un logement sur mesure COS 40% - étude G1 réalisée en ZONE UB - Au calme sur l'arrière d'une future résidence

    L'agence SIMPLISSIMMO a travaillé pour le meilleur prix, elle est à votre disposition pour plus d'informations.

    RARE a voir vite

    Le prix de vente est de 129 000 €. HAI à la charge vendeur - Annonce rédigée agent Mandat : MVT52024

    • Prix
      129 000 €
    • Code postal
      31140
    • surface terrain
      400 m²
    • Vue
      AGREABLE
    • Terrain constructible
      OUI
    • RĂ©fĂ©rences
      MVT52024
  • Plus d'informations
    financières

    • Prix de vente
      129 000 €
    • Les honoraires d'agence seront intĂ©gralement Ă  la charge du vendeur
       
  • Plus de
    détails

    • Exposition
      Sud-Est
    • Terrain ViabilisĂ©
      OUI
  • Plus d'informations sur
    le quartier

    • Commerces et santĂ©
    • Loisirs
    • Ecoles
    • Transports
    • Pratique
  • Bilan
    énergétique

    DPE GES
    DPE ANCIENNE VERSION
    Coup de coeur

Ce bien
m'intéresse

Nos outils